
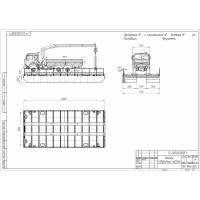
Буровая установка на понтоне.
Компания: ООО "НПО Металлообработка" http://npomo.ru
Отрасли: Горно-обогатительные комбинаты, Рудодобывающая промышленность, Топливодобывающая промышленность
Где: Москва
Буровая установка на понтоне.
Просмотров: (86105)